Affordable Accommodation Solutions

20' Open Plan Container Home

Forget about spending more than $100,00 plus on an extension on your home for an extra bedroom and waiting for a year to make it happen.  
Grab an affordable solution for a third of the price.  And the best part is, when you have finished with your plug’n’go room, call us and we will sell it for you. 
For more information, call us on 5565 4341.

Ideal for home office, spare bedroom, small business etc.

learn more

Affordable Accommodation Solutions

20'   1 Bedroom Container Home 

Layout 1

learn more

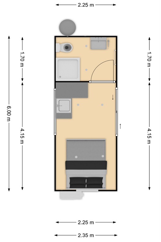
Affordable Accommodation Solutions

20'   1 Bedroom Container Home 

Layout 2

learn more